Karakuri rack 22071453

Code: 22071453

Rack suitable for implementing the Karakuri method. The system uses roller tracks and gravity to move crates easily. The shelf is full description and parameters

Delivery time 3-4 weeks.

Price on request

Quantity

Description and technical parameters

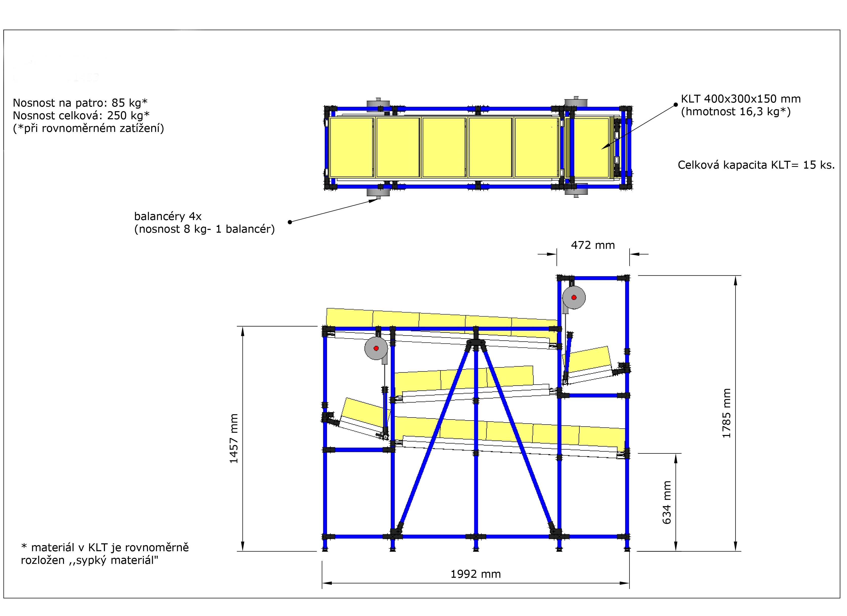
Karakuri rack 22071453

Rack suitable for implementing the Karakuri method. The system uses roller tracks and gravity to move crates easily. The shelf is suitable for KLT crates 400 x 300 x 150 mm and the total capacity of the shelf is 15 pcs. Floor load capacity 85 kg, total load capacity 250 kg. The rack is equipped with 4 balancers with a load capacity of 8 kg.

  • suitable for implementing the karakuri method
  • suitable for transporting KLT crates 400 x 300 x 150 mm
  • 4x balancer with a load capacity of 8 kg (total load capacity of 32 kg)
  • total capacity 15 pcs
  • floor load capacity 85 kg
  • total load capacity 250 kg

Customized application, all dimensions can be adjusted according to customer needs. The tubes are available in several colors and in ESD or stainless steel versions.

 

Color variants ESD variant Stainless steel variant
1 mm thick steel tube (LP-1100) or 2 mm (LP-1200) antistatic steel tube 1 mm thick (CP-1100BK) or 2 mm (CP-1200BK) 0.7 mm thick stainless steel tube (ST-1070) or 1.1 mm (ST-1110)

 

Black variant Nickel variant Silver variant
metal clutches are always available in three variants - black, silver and nickel

 

Warranty (years): 2

You can buy more

Similar products